Son yıllarda sıra dışı bakımevi projeleri gündeme geliyor. Örneğin Kuşaklararası Öğrenme Merkezi olarak adlandırılan huzurevi-anaokulu ve üniversite öğrencilerinin gönüllü çalışma karşılığında yaşlıların yanında ücretsiz konaklamasına izin veren Humanitas Deventer hayranlıkla yer verdiğimiz projelerdendi. Fransa’da yapımına başlanan Village Landais Alzheimer ise Alzheimer’ın pençesindeki insanların özgürce yaşayabileceği bir Alzheimer Köyü olarak gündemde.
Alzheimer Köyü hastalar için özgürlük, mutluluk ve daha az ilaç kullanımı demek
Güneybatı Fransa’da, Landes bölgesinde Dax’ta inşa edilmeye başlayan Village Landais Alzheimer hem hastalar hem de hasta yakınları açısından devrim niteliğinde bir proje. Tesis, hastaların Alzheimer ilaçları kullanmadan kapalı bir yerleşim bölgesinde özgürce yaşayabilmesi için tasarlanmış. Böylece hastaların güvenliği sağlanırken özgürlükleri kısıtlanmamış olacak. Ana fikir, özgürlük arttıkça hastanın daha mutlu olacağı ve bunun da ilaç ihtiyacını azaltacağı şeklinde.
Aslında bu proje bir ilk değil, Hollanda’daki benzer bir tesisten ilham alıyor. Fransa’daki proje, Landes milletvekili Henri Emmanuelli tarafından yürütülüyor. Alzheimer Köyü olarak da anılan tesis sadece konutlardan ibaret değil. Aynı zamanda süpermarket, kuaför, kütüphane, spor salonu ve benzeri mağaza ve etkinlik alanlarıyla donatılmış.
Tesiste üniformasız sağlık personeli, araştırmacılar ve gönüllüler de yer alacak
Hastane atmosferi yaratmamak adına üniforma giymeyen sağlık personeli tarafından bakılacaklar. Nörolog Jean-François Dartigues, hastaların bu tesiste normal sosyal rutinlerine devam edeceğini ve böylece beyinlerini hep aktif tutatacaklarını vurguluyor. Sağlık personelinin yanı sıra araştırmacılar ve etkinlik organize edecek olan gönüllüler de tesisin bir parçası olacak.
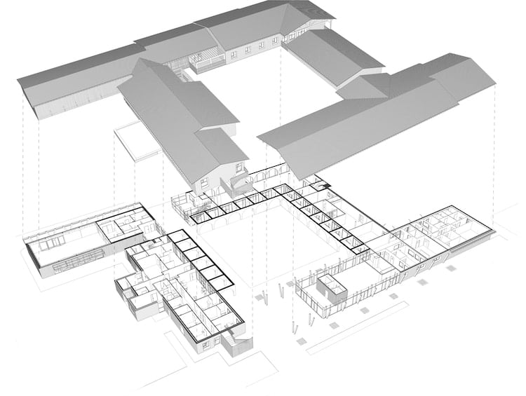
Tesis’in tasarımı Champagnat & Grègoire Architects ve NORD Architects iş birliğiyle yapılmış. Bölgenin geleneksel mimarisine uygun bir köy tasarlamışlar. Landes bölgesine özgü bir Orta Çağ kasabasını andıran tesiste evler, bir avlu etrafında dört blok halinde gruplandırılmış. Tesis içinde doğa mümkün olduğunca korunmuş. Yeşili bol yürüyüş yolları, duyusal stimülasyon sağlayarak hastaları doğa ile etkileşime girmeye teşvik ediyor.
Yapımı hala devam eden tesisin bu yılın sonunda açılması hedefleniyor. Dilerim benzer bir Alzheimer Köyü ülkemizde de kurulur. Bunu olumsuz anlamda bir kopyalama girişimi olarak da düşünmeyin. Çünkü kopyalanmak, sosyal ve çevre dostu projelerin bir parçasıdır ve bu tür projeler kopyalandıkça mutlu olur.


Görsel: Champagnat & Grègoire Architects







