Farklı tasarım yaklaşımıyla adından söz ettiren Hollandalı mimarlık stüdyosu MVRDV, Amsterdam’da tanıdık bir malzemeyi yepyeni bir yöntemle ele alarak öncü bir tasarıma imza attı.

Amsterdam’ın lüks mağazalarla bezeli meşhur alışveriş caddesi PC Hooftstraat üzerinde yer alan bir mağaza için gerçekleştirilen cephe tasarımında cam, taşıyıcı bir yapı malzemesi olarak ele alındı. Caddenin geleneksel mimari diline uyum sağlayacak biçimde cam, alışılagelen cephe malzemesi terakotanın yerini aldı.

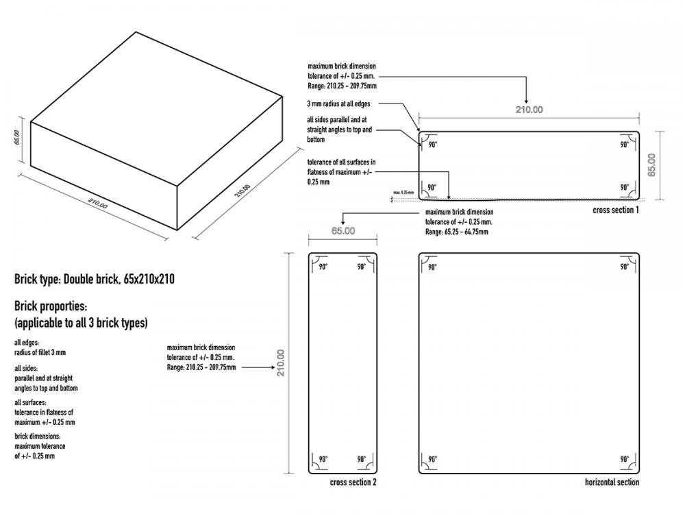
Warenar’ın ana mağazasına ev sahipliği yapan “Crystal Houses” isimli projede, 620 m2 kiralık alan ve 220 m2 konut alanı bulunuyor. Camdan örülmüş duvarları, cam elemanların yan yana dizilmesiyle oluşturulan kemerleri, cam pencere çerçeveleri ile bu cephe caddeye yakın giriş kısmında bütünüyle geçirgen bir etkiye sahip. Mağaza vitrini için ihtiyaç duyulan bu geçirgenlik duygusu, üst katlarda yer alan konutlarla birlikte yerini şehrin homojen dokusunun temel ögesi olan tuğlaya bırakıyor. Cam ve tuğla arasındaki akış ile cephe, geçirgenlikten opaklığa uzanan bir akışa sahip oluyor.


Cam gibi kırılgan bir malzemeden bu denli rijit bir yapı elemanı elde edilmesi için pek çok teknik araştırma süreci yapışmış ve malzeme taşıyıcılık testlerine tabi tutularak, gerekli açıklıkların sağlanabileceği ideal ölçülerde cam yapı elemanları imal edilmiş.


Projelerinde sürdürülebilirliği çok önemli bir kriter olarak alan MVRDV, cephenin tamamının gerekli görüldüğünde eritilerek geri dönüştürülebilir olduğunu belirtiyor. Bunun tek istisnasını ise, hırsızlık ya da araba çarpma tehlikesi gibi konuları önlemek adına cephede parlak ve geçirgen olmayan bir bant arkasına gizlenen ve cephenin yerleştirilmesi için bir temel görevi gören topuk betonu oluşturuyor.

Daima “ya sonra?” sorgusu ile yoluna devam eden MVRDV, geçmişe ait formları alışılagelmişin dışında bir malzeme alternatifi ile ele alarak, hem işlevsel hem çarpıcı hem de çevreci bir tasarım gerçekleştirmeyi başarıyor.






Görsel: MVRDV, Daria Scagliola & Stijn Brakkee







